small_tab1_Serie KSF
small_tab1_Serie KSF

KSF   

FILTERSKAB TIL MONTERING AF FILTERELEMENTER TIL UDSKILLELSE AF STØVPARTIKLER

Kanal HEPA-filter til mini Pleat filterpaneler, mini Pleat filterceller og filterceller med aktivt kul. Til installation i ventilationssystemers kanaler.

  • Kanalkabinet af stål med dekontaminerbar pulverlakering i RAL 9010
  • Robust, svejset kabinetkonstruktion med tilslutningsflanger i omkredsen med forborede huller
  • Kabinet med fordybninger for at sikre præcis montering af filterelementerne
  • Sikker tætning mellem kabinet og filterelement ved hjælp af spændeskruer
  • Robust dækplade med profileret tætning, 4 spændeskruer og et håndtag til lufttæt lukning
  • Horisontal eller vertikal installationsretning


Ekstraudstyr og tilbehør

  • Konstruktion i rustfrit stål

Anvendelse

Anvendelse

  • Kanalpartikelfilter til installation i ventilationskanaler og ventilationsanlæg
  • Montering af filterelementer til udskillelse af støvpartikler som aerosoler, giftigt støv, vira og bakterier fra indblæsnings- eller udsugningsluften
  • Montering af filterceller med aktivt kul til udskillelse af gasformede lugtstoffer og forurenende stoffer fra indblæsnings- og udsugningsluften

Konstruktion

  • SPC: Stål, pulverlakeret RAL 9010, ren hvid
  • STA: Rustfrit stål


Nominelle størrelser

  • B × H × T [mm]


Beskrivelse

Supplerende produkter

Nedenstående filterelementer skal bestilles separat
  • Mini Pleat filterplader (MFP)
  • Mini Pleat filterceller (MFC)
  • Aktivkul-filterceller (ACF)

Konstruktionsegenskaber

  • Kabinet med robuste tilslutningsflanger
  • Spændeskruer til sikker tætning mellem kabinet og filterelement
  • Afdækningsplade med profileret tætning og 4 spændeskruer med stjernegreb

Materialer og overflader

  • Kabinet af stål, pulverlakeret RAL 9010, ren hvid, eller af rustfrit stål

Installation og idriftsættelse

  • Installationsretning: horisontal eller vertikal (drejet 90°)
  • Trykmålepunkter for hver filterenhed er en del af leveringspakken, men skal opsættes på stedet af andre


Vedligeholdelse

  • Vedligeholdelsesfri, da konstruktion og materialer ikke udsættes for slitage

Tekniske informationer

Specifikationstekst, Ordrekode

  • Specifikationstekst
  • Ordrekode

Kanalpartikelfilter KSF som filterkabinet til installation i ventilationskanaler og ventilationsanlægMontering af filterelementer til udskillelse af støvpartikler som aerosoler, giftigt støv, vira og bakterier fra indblæsnings- eller udsugningsluften; også til montering af filterceller med aktivt kul til udskillelse af gasformede lugtstoffer og forurenende stoffer. Filterkabinet med robuste tilslutningsflanger med forborede hullerSpændeskruer garanterer sikker tætning mellem kabinet og filterelement.

Tætning og 4 spændeskruer med stjernegreb. Trykmålepunkter er en del af leveringspakken, men skal opsættes på stedet af andre.

Materialer og overflader

  • Kabinet af stål, pulverlakeret RAL 9010, ren hvid, eller af rustfrit stål


Konstruktion

  • SPC: Stål, pulverlakeret RAL 9010, ren hvid
  • STA: Rustfrit stål
KSFSPC / 710 × 520 × 710
|||
123

1 Type

KSF:
 Kanalpartikelfilter
 
Materiale
SPC:
 Stål, pulverlakeret RAL 9010, ren hvid
STA: Stainless steel
 
Nominel størrelse [mm]
B × H × T

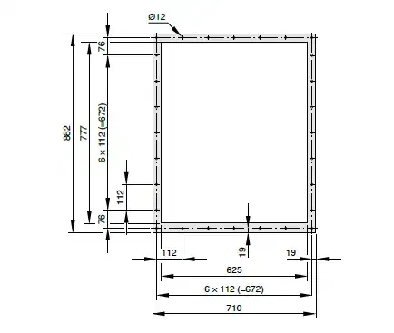
Dimensioner

  • Dimensioner
Produktspecifikke data

Nominel størrelse

Filterstørrelse

Vægt

B

H

T

B × H × T

∼ kg

405378405305 × 305 × 15016
405378710305 × 610 × 15019
710378405305 × 610 × 15019
710378710610 × 610 × 15024
710378862762 × 610 × 15027
405520405305 × 305 × 29218

405

520

710

305 × 610 × 292

21

710520405305 × 610 × 29221
710520710610 × 610 × 29228
710520862762 × 610 × 29230

Downloads

Produktoplysninger

Certifikater

production {"x-frame-options"=>"SAMEORIGIN", "x-xss-protection"=>"0", "x-content-type-options"=>"nosniff", "x-permitted-cross-domain-policies"=>"none", "referrer-policy"=>"strict-origin-when-cross-origin", "strict-transport-security"=>"max-age=31536000; includeSubDomains", "content-type"=>"text/html; charset=utf-8", "link"=>"</assets/application-efbc495b06ca980ef13dc743756002fce2f413f798fecb64c7f0c81954c16402.css>; rel=preload; as=style; nopush,</assets/print-fec2e47d6d8dcc5d4c101139f17046ba981ca1c12f71e7e403fba50cc7584175.css>; rel=preload; as=style; nopush,</assets/other_js/modernizr.custom.93544-c26374a79d804901074bb4aa6fd3fa44ea22e840389915d2adce16b024021ef3.js>; rel=preload; as=script; nopush,</assets/other_js/js.cookie.min-de103d86d1919b40950f791699b4ce768137fde41af09b35ff92bde369732183.js>; rel=preload; as=script; nopush,</assets/other_js/jquery-3.5.1-2c4ce18a1a3f144c333912efc24a76c9a165a0dba9f88a499985df1af0a196a2.js>; rel=preload; as=script; nopush"}

Del siden

Anbefal denne side

Her har du mulighed for at anbefale denne side videre som link.

Felter markeret med stjerne (*) er påkrævede.

Kontakt

Mange tak for meddelelsen!

Din anbefaling er sendt, og vil snarest blive leveret til modtageren.


Kontakt

Vi hjælper dig gerne

Angiv venligst et emne for din forespørgsel og dine kontaktoplysninger.
Tel.: +45 4914 6633

Attachment (max. 10MB)

Felter markeret med stjerne (*) er påkrævede.

Kontakt

Mange tak for meddelelsen!

Din meddelelse er modtaget og vil blive behandlet af vores service center.
Vores serviceafdeling vil snarest muligt kontakte dig.
Til generelle spørgsmål om produkter og tjenester kan du kontakte os på:
Tel.: +45 4914 6633

Kontakt

Vi hjælper dig gerne

Angiv venligst et emne for din forespørgsel og dine kontaktoplysninger.
Tel.: +45 4914 6633

Attachment (max. 10MB)

Felter markeret med stjerne (*) er påkrævede.

Kontakt

Mange tak for meddelelsen!

Din meddelelse er modtaget og vil blive behandlet af vores service center.
Vores serviceafdeling vil snarest muligt kontakte dig.
Til generelle spørgsmål om produkter og tjenester kan du kontakte os på:
Tel.: +45 4914 6633